別荘 駒込深沢別荘
情報更新日:2026-04-07
| 所在地 | 間取 | 価格 | 建物延面積 | 敷地面積 |
|---|---|---|---|---|
| 青森県 青森市 駒込字深沢873-24 | 550万円 | 117.57㎡ | 1000㎡ (公簿) |
別荘に適す
本物件の内容や画像等は全て現況優先とさせていただきます。各画像は参考図となります。
| 交通機関 | 青い森鉄道 筒井駅車/31分 | ||
|---|---|---|---|
| 学区 | |||
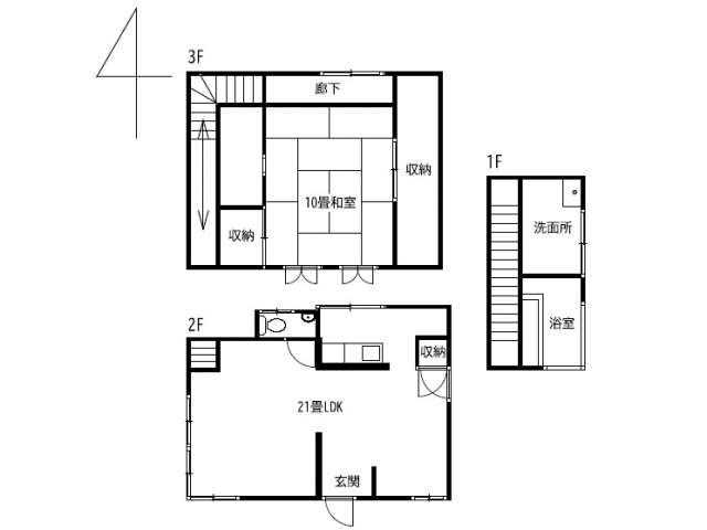
| 詳細間取 | |||
| 周辺施設 | |||
| その他費用 | |||
| 総戸数 | 建物構造 | その他 (木・鉄筋コンクリート造) | |
| 築年月 | 平成3年 | 主要採光方向 | 不明 |
| 駐車場 | 地勢 | 平坦 | |
| 駐車場複数台 | 不可 | 土地権利 | 所有権 |
| 用途地域 | 用途指定なし | 国土法届 | 不要 |
| 取引態様 | 専任媒介 | 現況 | 空家 |
| 引渡 | 即可 | 借地料/借地期間 | ─ / ─ |
| 地目 | 山林 | 都市計画 | 区域外 |
| セットバック | 無 | 接道状況 | |
| 私道負担 | ─ / ─ | ||
| 法令上の制限 | |||
| 建ぺい率/容積率 | ─ / ─ | 管理 | 不明 |
| 利回り | ─ / ─ | 修繕積立金 | |
| 設備 | バス(無) トイレ(洋式 独立 簡易水洗) 下水道設備(浄化槽) LPガス | ||
| 備考 | 水道維持管理料 年額1万円 現況有姿で引き渡し ボイラー無し(設置工事は可能) 1Fは間取の他に物置あり(玄関下入口から出入り出来ます) ※同業他社による客付け可 | ||
| 取扱業者 |
(有)ティーエム管理 青森県知事免許(5)第3083号 青森県青森市松原三丁目14-27 タケダビル2F TEL:017-721-0013 FAX:017-777-7115 (公社)青森県宅地建物取引業協会会員 東北地区不動産公正取引協議会加盟事業者 |
||










