一戸建 奥野2丁目
情報更新日:2026-04-05
| [ 所在地 ] 青森県 青森市 奥野2丁目13-11 | |||
| 間取 | 価格 | 建物延面積 | 敷地面積 |
|---|---|---|---|
| 3SLDK | 2,180万円 | 92.74㎡ | 136.64㎡ (公簿) |
令和2年1月築。スーパーや小中学校、病院が徒歩圏内。
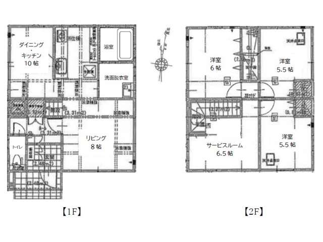
本物件の内容や画像等は全て現況優先とさせていただきます。各画像は参考図となります。
| 交通機関 |
青い森鉄道 筒井駅徒歩16分 バス 筒井通り徒歩5分 |
||
|---|---|---|---|
| 学区 | 筒井小学校(0.65km)・浦町中学校(0.8km) | ||
| 詳細間取 | 3SLDK (2階:洋6帖×1、2階:洋5.5帖×2、1階:LDK18帖、サービスルーム6.5帖) | ||
| 周辺施設 | 県民生協あじさい館:750m、ファミリーマート青森奥野四丁目店:450m、青森市民病院:950m | ||
| 周辺環境 | その他費用 | ||
| 総戸数 | 建物構造 | 木造 | |
| 築年月 | 令和2年1月 | 主要採光方向 | 南 |
| 駐車場 | 地勢 | 平坦 | |
| 駐車場複数台 | 可1台まで | 土地権利 | 所有権 |
| 用途地域 | 第二種中高層住居専用 | 国土法届 | 不要 |
| 取引態様 | 仲介 | 現況 | 古家有 |
| 引渡 | 他 (相談) | 建ぺい率/容積率 | 60% / 200% |
| 地目 | 宅地 | 都市計画 | 市街化 |
| セットバック | 無 | 接道状況 | 一方(私道・南側・間口11.5m・幅員4m) |
| 私道負担 | ─ / ─ | 建築確認番号 | |
| 法令上の制限 | 法22条区域、居住誘導区域内 | ||
| 設備 | バス(有 シャワー有 ) トイレ(洋式 独立 水洗 暖房便座 洗浄機能付) 上水道設備(公営) 下水道設備 洗面化粧台(独立)(シャワー付) IHヒーター TV付インターホン エアコン 下駄箱 洗濯機置場 物置 カーポート フローリング クローゼット バリアフリー | ||
| 備考 | 任意売却物件。売主契約不適合責任免責 。債権者の抹消同意が必要。 ※鍵は他社にあるため、内覧希望の方は希望日の3日前までにご連絡ください。 | ||
| 取扱業者 |
(株)ムーラン 青森県知事免許(4)第3284号 青森県青森市勝田1丁目5-12 TEL:017-718-2741 FAX:017-718-2742 (公社)青森県宅地建物取引業協会会員 東北地区不動産公正取引協議会加盟事業者 |
||


























